
VYM-12 Indoor High-Voltage Vacuum Circuit Breaker (hereinafter referred to as the circuit breaker) is the indoor switchgear of three-phase AC 50Hz and 12kV power system, and is taken as the control and protection unit of the electrical facilities in industrial and mining enterprises, power plants and substations. Due to special advantages of the vacuum circuit breaker, it is applicable for places requiring frequent operation of the rated operating current or multiple breaking short-circuit current.
The circuit breaker has reliable interlocking function, which can be taken as both the handcart unit and the fixed unit.
| Rated Voltage (V) | Rated Input Power (W) | Normal Operating Voltage Range (V) | Energy Storage Times under Rated Voltage(s) |
| AC110/220 | 70 | 85%~110% Rate voltage | ≤15 |
| DC110/220 |
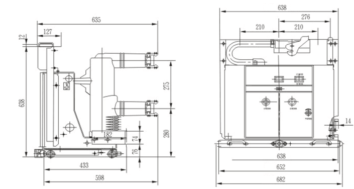
1. External Dimensions of the Handcart Type
Note: 1) The handcart circuit breaker with rated current of 630A can be equipped with Φ35 and Φ49 two stationary contacts, which shall be indicated during order.
2) The circuit breaker with rated current of 1600A has many different external dimensions. Please select it according to actual demands, and indicate it during order.

Figure 1 Outline Drawing of VYM-12 Handcart(distance of 210mm)
Rated Current (A) | 630 | 1250 | 1600 |
Rated Short-circuit Breaking Current (kA) | 20, 25, 31.5 | 25, 31.5, 40 | 31.5, 40 |
Dimensions of the Litting Stationary Contact (mm) | Φ35 | Φ49 | Φ55 |
Distance (mm) | 210±1.5 | ||

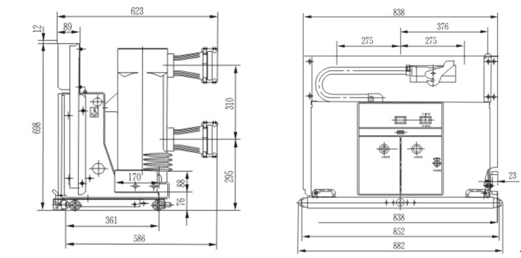
Figure 2 Outline Drawing of VYM-12 Handcart (distance of 275mm)
Rated Current (A) | 1600 | 2000 | 2500 | 3150 | 4000 |
Rated Short-circuit Breaking Current (kA) | 31.5, 40 | 31.5, 40 | 40 | ||
Dimensions of the Fitting Stationary Contact (mm) | Φ79 | Φ109 Φ55 | |||
Distance (mm) | 275±1.5 | ||||
2 External Dimensions of the Fixed Type

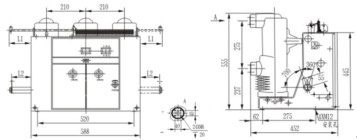
Figure 3 Outline Drawing of VYM-12 Fixed Type (distance of 210mm)
Rated Current (A) | 630 | 1250 | 1600 |
Rated Short-circuit Breaking Current (kA) | 20, 25, 31.5 | 25, 31.5, 40 | 31.5, 40 |
Distance (mm) | 210±1.5 | ||
Mechanism Top Interlock L1 (mm) | 50, 120, 150, 200 (leftward orrightward extension, the length can be customized according to the customer's requirements) | ||
Mechanism Top Interlock L2 (mm) | 36, 106, 136, 186 (leftward orrightward extension, the length can be customized according to the customer's requirements) | ||

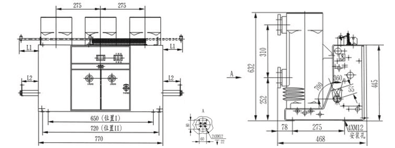
Figure 4 Outline Drawing of VYM-12 Fixed Type (distance of 275mm)
Rated Current (A) | 1600 | 2000 | 2500 | 3150 | 4000 |
Rated Short-circuit Breaking Current (kA) | 31.5, 40 25, 31.5, 40 | 40 | |||
Distance (mm) | 275±1.5 | ||||
Mechanism Top Interlock L1 (mm) | 50, 120, 150, 200 (leftward orrightward extension, the length can be customized according to the customer's requirements) | ||||
Mechanism Top Interlock L2 (mm) | 36, 106, 136, 186 (leftward orrightward extension, the length can be customized according to the customer's requirements) | ||||
1.Vacuum Interrupter
The circuit breaker is equipped with the middle sealing ceramic or glass vacuum interrupter. The Cu-Cr contact material and cup-shaped longitudinal magnetic contact structure are adopted. The electrical wear rate of the contact is small, the electrical life is long, the voltage withstand level is high, the dielectric insulation strength is stable, the backarc recovery speed is fast, the cut-off level is low, and the breaking capacity is strong.
2. Overall Structure
The operating mechanism and arc extinguishing chamber front-and-rear layout are adopted for the overall structure of the circuit breaker, and the main conducting circuit has the three-phase floor-type structure. The vacuum interrupter is installed in a tubular insulating tube in the longitudinal direction, and the insulating tube is poured with epoxy resin by adopting the APG process, therefore, it has special anti-creepage. The structure design greatly reduces accumulation of dust on the surface of the arc extinguishing chamber, which can prevent damage of the vacuum interrupter due to external factors, and can ensure high impedance state of the voltage effect even in the hot and humid and seriously polluted environment. The circuit breaker is installed with the dust-proof insulating tube cover for various current rating at ex-factory. It is not necessarily removed during operation with rated current of 1250A and below during actual use, but it must be removed during operation with rated current of 1600A and above.
3. Operating Mechanism
The operating mechanism is a planarly arranged spring energy storage operating mechanism which has the functions of manual energy storage and electric energy storage. The operating mechanism is placed in the mechanism case in front of the arc extinguishing chamber, and the mechanism case of the circuit breaker is taken as the framework for operating mechanism. The mechanism case is divided into five assembly space by four intermediate diaphragms, and the energy storage part, transmission part, tripping part and buffer part are installed in each of the assembly space respectively. The front is arranged with the on-off button, manual energy storage operation holes, spring energy storage state signage and on-off signage. Therefore, the arc extinguishing chamber and the mechanism adopt the front-and-rear layout as a set, so that both are more matched with each other, so as to reduce unnecessary intermediate transmission link, energy consumption and noise, make the functions of the circuit breaker more reliable
4.The circuit breaker has the advantages of long life, simple maintenance, no pollution, no explosion hazard, low noise, etc, which is applicable for frequent operation and other harsh working conditions. The circuit breaker can be installed in the handcart switchgear. It can also be used for the fixed switchgear.
©1996-2023 晋ICP备07500050号 Huaxin Copyright
©1996-2023 晋ICP备07500050号 Huaxin Copyright